图知网
搜索
首页
热门推荐
图片分类
恋上德化瓷一苏献忠作品赏析
下载原图
相关图片
似在沉思作品落有中国陶瓷艺术大师 苏珠庄(苏献忠)印章,并配有手签名
恋上德化瓷一苏献忠作品赏析
中国陶瓷艺术大师苏献忠力作祥云观音
恋上德化瓷一苏献忠作品赏析
恋上德化瓷一苏献忠作品赏析
陶瓷艺术大师苏献忠颠覆创新即为传承
为你推荐
关晓彤:第0196期 美脚欣赏
祝自己生日快乐! - 抖音
【7715身高:165cm 最胖200斤】原始体重:175.
禁忌体质:特秉质适宜体质:气虚质适宜人群:一般人群均可食用白扁豆.
白百合白色百合花白色背景
京剧脸谱三国人物
嘟嘟嘟·····长款棒球服搭配英伦的马丁 -蘑菇街
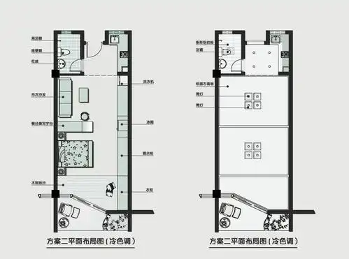
简约风格单身公寓平面设计图