图知网
搜索
首页
热门推荐
图片分类
主打110系列断桥铝门窗你都了解多少?简要8个部分来解剖: - 抖音
下载原图
相关图片
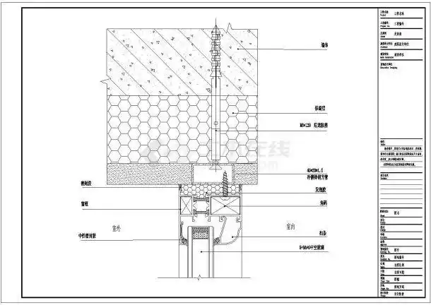
各种系列断桥隔热铝合金门窗节点详图图集(标注详细,种类齐全)
铝合金门窗塞缝规范
各种系列断桥隔热铝合金门窗节点详细设计cad设计素材
55g系列断桥铝合金平开窗节点
cn213063386u_一种新型断桥铝合金防火窗
55系列断桥铝门窗节点图汇总
为你推荐
vol 235 精选无水印高清手机壁纸(情侣)
舒馨坊足浴会所(瑞景店)
点 提 横折钩 点 提 横折钩 撇拼音:[ wěng ] [ yǎng ] 部首:力
彩虹湾
傻屌面对疾风吧
鲜辣味粉上海唯源百味美 炒面鲜辣粉调味品香料调料500g
灵感直接取于奔腾的黄河著名的《黄河大合唱》似乎我们更多关注它的
匈牙利铜版藏书票雄鹰和秃鹰