图知网
搜索
首页
热门推荐
图片分类
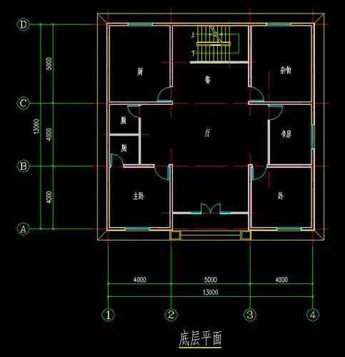
想回农村建房宅地基,却不够大怎么办?小面积照样盖成大别墅!
下载原图
相关图片
钢筋混凝土结构:框架 结构安全等级:二级 地基基础设计
面宽8米狭长形地基怎么建房7款设计案例村里建一栋人人跑来效仿
急求,我有13x13米的地基想做一层为100平米2层私房(正面有私房间隙2米
地基8米宽三层农村建房案例2套方案怎么选才不后悔
几张农村平房地基施工设计图分享让你看看长什么样
> 正文 全椒厂房地坪切割专业切割公司 求房屋设计图 我本想 地基
为你推荐
人物手势图片
拔除牙齿图
史莱姆娘是日本漫画《关于我转生变成史莱姆这档事》中的主人公之一
它是"扰乱朝纲",比贪腐危害大多了!(原创首发)|亮剑
职场风小西装套装女2019新款毛杆面料职业套装女ol气质正装工作服
和平精英特斯拉什么时候下架
英雄联盟:璀璨中的圣光,守护战火中的队友——拉克丝
十香园,位于广州市海珠区怀德大街,占地面积640平方米,是岭 - 抖音