图知网
搜索
首页
热门推荐
图片分类
食品工厂设计平面图_第1页
下载原图
相关图片
04-小作坊平面厂房规划图
自己设计的熟食车间布局平面图
陕西省食品药品监督管理局关于印发《陕西省食品小作坊生产经营规范
三原东环王宏利小吃店平面图
筹建的熟食卤制品车间,麻烦各位看下设计图合理不
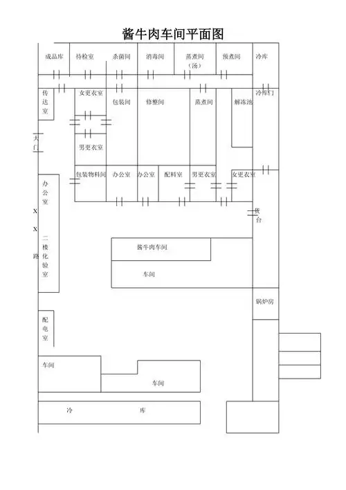
酱牛肉车间平面图_第1页
为你推荐
俄罗斯设计师olga的黑白画,很强大,细节表现得很清楚,画工很精细.
一组非洲儿童真实照片饥饿与贫困相伴
现代立绘女
2寸汽油机自吸泵
徐闻一个隐秘的角落
*2402 蓬莱仙境图 手卷 绢本
徽州"三雕"
大亚湾最新版旅游手绘地图(收藏)