图知网
搜索
首页
热门推荐
图片分类
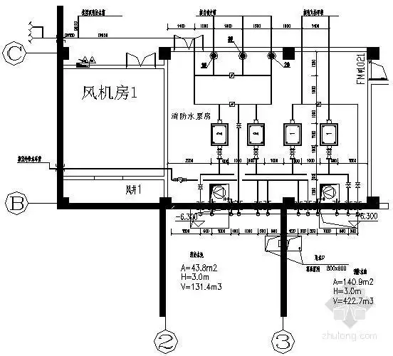
墙壁式的消防水泵接和器怎么安装
下载原图
相关图片
某地区消防供水泵房节点设计详图(含说明)
某工程消防水泵房分层平面图剖面图
水泵房设计详图
消防水泵房大样图cad
水锤消除器消防水泵流量压力测试安装图
水泵房大样图
为你推荐
男明星留胡子堪比整容王宝强帅到没边肖战像换了一张脸
秋意浓浓jeep圣弗莱风尚换季着装正当时
不怕不怕_歌谱简谱_哆来咪123曲谱网
莫斯伯格152型点22lr半自动步枪在民用市场得到广泛接受_射手_射击
加了水印会被喷
古惑仔 — 靓坤 我现在会很大. 告诉你!出来混,有 - 抖音
韩国卡通电器物件:电烤箱矢量素材
合肥一家鞋店装修设计需要了解什么