图知网
搜索
首页
热门推荐
图片分类
脚全高清壁纸和背景
下载原图
相关图片
壁纸脚
脚,海,海岸 壁纸
唯美脚丫高清壁纸1920x1200分辨率6张
【1119电脑精选20p】足控合集
运行,冬天,脚,雪,运动壁纸
胡桃插画图片壁纸
为你推荐
9494青花瓷做为我国的传统工艺,有特别大的历史意义,梅花也是
京剧人物
伊利冰淇淋雪糕棒冰冰工厂老冰棍山楂爽冰片蜜桃奶香提子红枣牛奶红枣
公司公章印章分层模板
oldschool拼接花臂分享
超搞笑沙雕的表情包
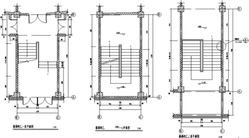
楼梯间平面图
俄罗斯明星武器装备很多,新军装也已发放完毕,值得我们学习借鉴_军服