图知网
搜索
首页
热门推荐
图片分类
《16g101-1》图集梁配筋讲解培训讲义(附图)
下载原图
相关图片
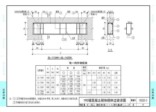
g322-1~4:《钢筋混凝土过梁》(2013年合订本)
钢筋混凝土过梁图集
g322-1~4:《钢筋混凝土过梁》(2013年合订本)
门窗过梁
门窗过梁配筋图
老师们好请教一下如下图所示的门窗过梁的钢筋该如何设置
为你推荐
《elle》杂志封面设计合集海报题图图片_700x933像素_图片编号243570
李雪琴凭啥火的?咋那么多人看不惯她红呢?北大毕业不能当演员?
轻松学荼蘼花简笔画
全蒙销冠车位热销背后的奥秘
石斛健骨瘦肉粥
我也是,从小到大已经21年了从未超过90斤!这是我刚刚称的
穿aj的女生头像动漫
直角肩 锁骨=行走的衣架子