图知网
搜索
首页
热门推荐
图片分类
茂名宝马金平开门生产商-宝马灰平开门-平开门铝材
下载原图
相关图片
厨房平开门做极简风格贴砖技巧
钢制平开门介绍不锈钢平开门价格钢制平开门厂家
平开门确定开向的方法,我猜你需要
关于平开门的开启方向和开启口
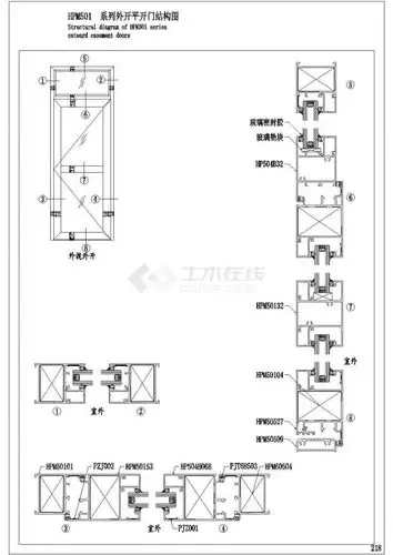
平开门装配图及截面图,本工程资料为dwg格式,图纸包括:各版块详细示意
【木门玻璃门】金孔雀家居缅甸柚木实木门卫生间门平开门移门玻璃门
为你推荐
张家界万福温泉冰泉泉水世界是夏天的首选,景色不错,有室外的,有室内
2009年9月,享有盛誉的服装设计师叶明子,在北京庄严肃穆的太庙内,举办
新店开业串串烤串餐饮活动海报
眼睑成形术:睑成形术相关解剖基础!
很伟大的头像法6
吴家辉演员
11区的耐热月季花-卡普里
鼓楼街