图知网
搜索
首页
热门推荐
图片分类
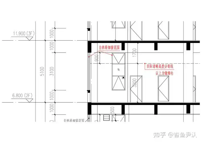
多层别墅建筑cad平面立面施工图纸
下载原图
相关图片
建筑施工图识图训练(很好很实用)
cad图库 全屋定制cad图纸 cad图纸 > 办公楼cad建筑施工图 素材图片
15层普通住宅楼给排水施工图纸免费下载 - 高层建筑给排水图 - 土木
欧式坡屋面3层独栋别墅建筑设计施工图(含全套cad图纸)
建筑施工图入门学习60门窗大样图150图纸
五层小型办公楼建筑结构cad施工图纸
为你推荐
蔡康永谈文章劈腿大众不要幸灾乐祸
14张自然风景手机壁纸!_网易订阅
校友会2024中国科技类大学分档排名华中科技大学居第一档
十五套办公室前台背景墙设计效果图-科技极简震撼装修布局合集
卢俊义卡通简笔画步骤
迪丘喵 _ 哔哩哔哩相簿
原创四角剪纸儿童手工剪纸窗花
蘑菇头吃雪糕的表情包