图知网
搜索
首页
热门推荐
图片分类
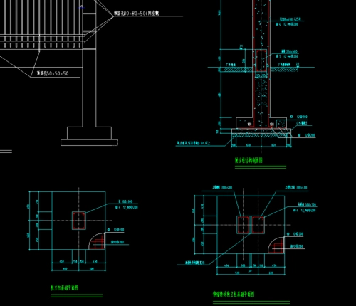
围墙基础
下载原图
相关图片
某通透围墙cad施工图设计
老师们赐教这个围墙的基础模板量怎么算啊
这是个围墙柱请问这个基础用桩承台上面用柱吗梁用地基梁
某工厂围墙施工图
围栏设计大样图
我想问一下这个围墙的工程量怎么计算呀配筋图怎么对应不上呀电动门
为你推荐
刘德华侧颜杀!
手背有痣代表什么身上财富痣部位痣的图
第八名就是:吴亦凡
手抄报集一4班 《动物尾巴作用大》手抄报集有趣的动物手抄报二年级
徐汉棠款瑞兽钮紫砂壶
牛仔裤原宿时尚气质新款女日系阔脚裤长裤水洗拉链深色自然腰冬季
北欧风三居卧室装修效果图
现货segafatefgofigurizmarcher贞德泳装景品手办手办