图知网
搜索
首页
热门推荐
图片分类
还有那载歌载舞的朗玛堆谐
下载原图
相关图片
发现非遗之美堆谐
首届中国堆谐之乡文化旅游节在拉孜开幕
国家级非遗"拉孜堆谐"文化旅游节开幕
人生高处相见珠峰探秘日喀则
千年"堆谐":从荒野乡村走向世界
上海援藏干部帮助雪域高原非遗走向全世界_堆谐_拉孜_演出
为你推荐
周杰伦晴天简化版吉他谱吉他谱
第五人格想象中的奈布现实中的奈布还是有点差距的
【鬼刀】风铃公主 冰公主图集
咱就是说这个侧脸剪影,绝了呀
有趣的折纸(二年级)——我是百变魔术师
我们为什么要紧紧抱在一起|摄影部|石榴籽|民族_新浪新闻
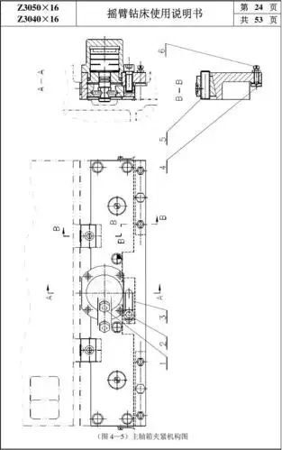
z3050型_摇臂钻床使用说明书
3d漫画cosplay动漫女孩