图知网
搜索
首页
热门推荐
图片分类
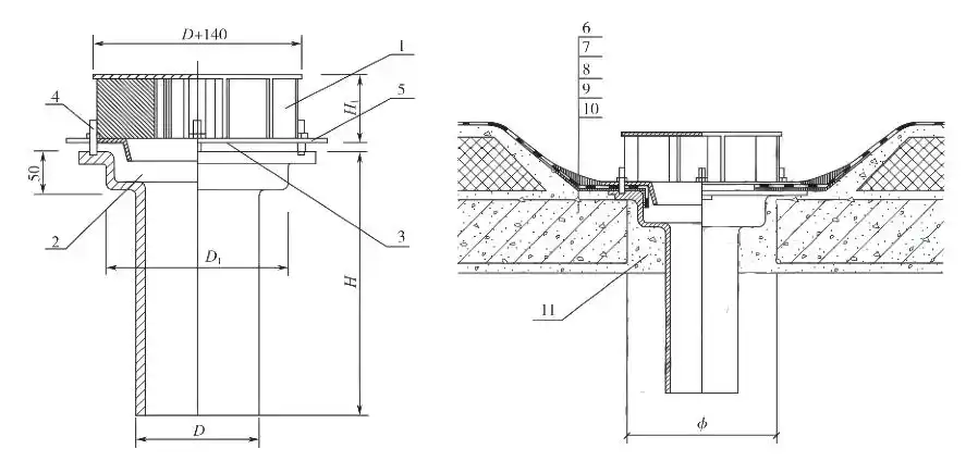
图1混凝土屋面虹吸雨水斗安装
下载原图
相关图片
8 雨水斗的预埋
01s302雨水斗
建筑屋面排水用雨水斗通用技术条件cjt2452021
01s302雨水斗标准图集pdf
分享09s302雨水斗选用及安装资料下载
各位老师们这条跟侧排雨水斗连接的管要算工程量吗或者侧排雨水斗已经
为你推荐
十二星座攻心策水瓶男
85d私藏烧烧内衣,颜值爆表,大杯尺码友好
1991年atv剧再造繁荣江华cut5粤语无字幕
实木儿童居家书柜成人现代简约松木书架组合简易组装带门书橱包邮_7折
中国儿童成长第1书-世界未解之谜
不锈钢4p21ya液压膝离断大腿假肢成套组件
97【618大促】teamlab无相艺术空间(朝阳大悦城) 96超级爆款丨
怦然心动漫画里的壁纸哦