图知网
搜索
首页
热门推荐
图片分类
拒绝白色污染减塑行动从我做起
下载原图
相关图片
世界环境日减塑捡塑我们在行动
编者按:6月5日是世界环境日,今年的主题为"减塑捡塑".
"发力"减塑",为低碳生活"加速"
减塑始于点滴环保从我做起一起来了解一下这些生活中的小变化吧
将减塑捡塑进行到底2023世界环境日
"减塑""降塑" 从我做起_砀山_发展_县委宣传部
为你推荐
抽象粉色纹理背景
杨超越这腿有点细
四.使用 apply() 方法
要爱就爱一辈子
web登录页素材
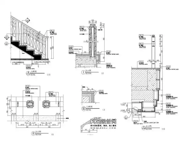
[酒店]楼梯及栏杆节点详图
孙千 身材好顶
图解里面有个三针并一针放三针,这个叫水草花,我把水草花的织法耶贴图