图知网
搜索
首页
热门推荐
图片分类
warframe配色分享鬼甲幽灵船长配色
下载原图
相关图片
如此炫酷的三套鬼甲配色你确定不来看看吗?
鬼甲词条图册_百度百科
鬼甲英喆
crowtoys鬼甲众甲虫武士的组合超有创意
乌鸦crowtoys鬼甲众第二弹虫子也可以酷酷地变身
怪物猎人世界银鬼骑士甲mod
为你推荐
俄宣布建造新航母 最终型号正在研究决定中 - 社会民生 - 中国网61
空气流量计安装位置 空气流量传感器安装在空气滤清器壳体与进气软管
李帝努[超话]#小时候的jeno大合集71566童年照整理合集李帝努力
bandai汽车贴纸万代潮牌车贴高达反光贴纸改装划痕贴个性动漫贴纸
刘蓓
手写文字 摘录 古风 情感 短句 … - 堆糖,美图壁纸兴趣社区
飞鹰喜劲这车还可以 - 重庆摩友交流区 - 摩托车论坛 - 中国摩托迷网
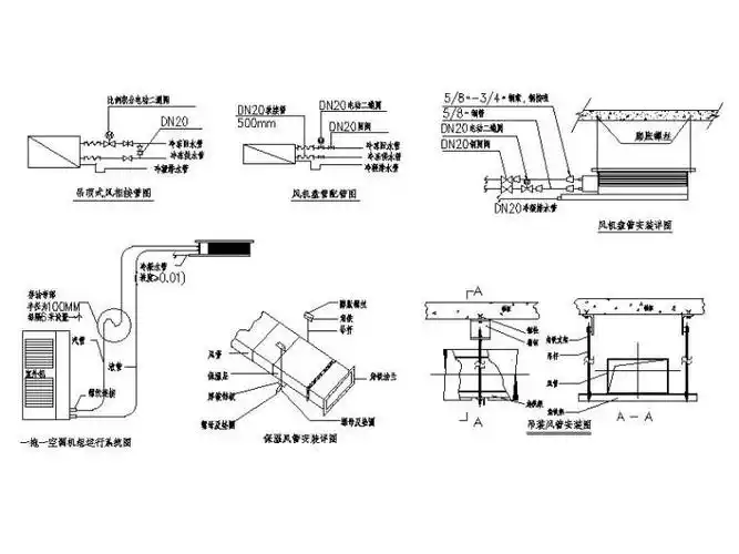
活动中心空调安装大样图cad