图知网
搜索
首页
热门推荐
图片分类
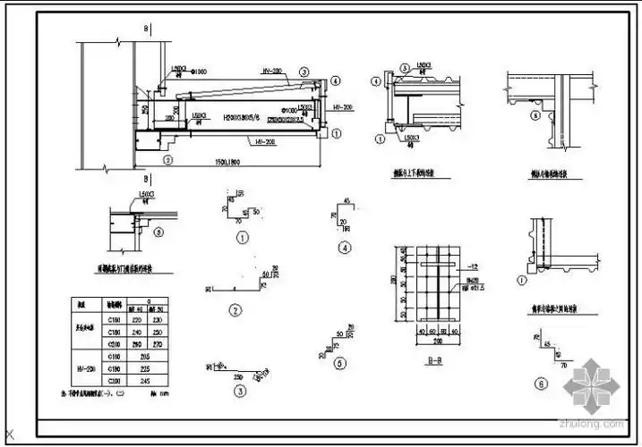
钢结构铝板雨棚节点大样图施工图/铝塑板立侧面采用铝板饰面【7】
下载原图
相关图片
[分享]铝板雨篷图集资料下载
铝合金雨棚户外遮阳棚阳台雨篷门窗雨蓬无声雨搭静音透明耐力板
钢结构设计说明,结构平面布置图,玻璃分隔布置图,植筋,连接板大样图
分享幕墙雨棚节点详图资料下载
钢结构铝板玻璃雨棚雨篷地下车库自行车雨棚cad施工图节点大样图
铝单板雨棚cad详图
为你推荐
刘亦菲北京电影学院毕业照,真的好清纯一少女.
高杰的个人专辑
王心凌大眠吉他谱无限延音编配
陈小春周延改编友情岁月比原版旋律更燃炸
学校林荫道
哥斯拉2前传哥斯拉余波故事全面曝光哥斯拉对决穆托王
欧文为什么吊打库里(深度:作为2011届状元出身,为何欧文的带队能力
奔驰c200最新价格一览表