图知网
搜索
首页
热门推荐
图片分类
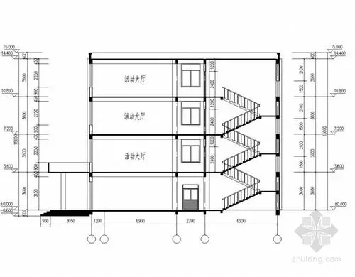
某小学三层教学楼建筑扩初图
下载原图
相关图片
[毕业设计][学士]四层框架教学楼结构施工图(含建筑图)
教学楼剖面图
[学士]五层框架结构教学楼毕业设计(含结构设计,建筑设计,计算书,毕业
教学楼剖面图
现代风格市级重点中学教学楼建筑剖面图
1#教学楼建筑剖面图
为你推荐
孕期想要羞羞怎么办? - 简书
四川成都:百年红牌楼"蜕变"中的坚守
最大的冲击力就是胖瘦的时候穿同一件衣服啦!
attention吉他谱_andrew foy_f调指弹 - 吉他世界
luv
郭炳湘获救后患上了严重抑郁,情绪无处释放,与青梅竹马的唐锦馨关系
怎么几何画板画六芒星
133s电动车电瓶车青年学生男女一人豪华单座脚踏车电摩电动自行车