图知网
搜索
首页
热门推荐
图片分类
52岁朱茵现状:住深山小屋,开97年复古车,活成了让人羡慕的样子
下载原图
相关图片
朱茵高束马尾清冷优雅 尽显港风复古格调|朱茵|复古|笑靥_新浪新闻
朱茵复古电影风大片释出 变换光影下美人神颜依旧_凤凰网娱乐_凤凰网
朱茵高束马尾清冷优雅 尽显港风复古格调
那个年代的港风美女朱茵
紫霞仙子扮演者朱茵清新自然美丽娇小朱茵年轻时期照片合集
组图:朱茵复古电影风大片释出 干练高马尾清冷优雅氛围感十足
为你推荐
梦幻的炫彩水晶
清新猫咪有趣图片_可爱的小猫很有趣
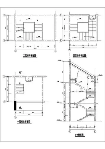
三跑楼梯设计图纸方案 平面 剖面 节点 结构
黑毛羊蹄山羊蹄子羊脚羊手羊爪生羊蹄肤色黑花2斤
多肉植物大盆苯巴蒂斯稀有品种室内阳台花卉多肉植物
中华路小学四年级一班的数学手抄报精彩呈现!
乍看像植物,再看像海马,花里胡哨的四不像——叶海龙