图知网
搜索
首页
热门推荐
图片分类
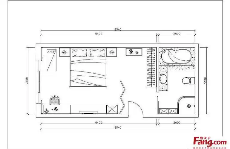
卧室布局攻略,5㎡当10㎡用!大床,衣柜,梳妆台都能放
下载原图
相关图片
主卧的方案尺度都不清楚怎么做好设计
主卧怎么设计
平面研讨_室内设计联盟 - powered by discuz!
相对独立的同时保证生活便利性~#室内设计 #平面布置图 #卧室布置
主卧套间布局参考样式
小卧室房间布局平面装修效果图
为你推荐
长歌行山西卫视黄金档首播##吴磊阿诗勒隼
美女黑白简笔画绘画教程19附过程
在计数器上分别可以表示哪些两位数?画一画,写一写.
图说英语单词:小学英语单词闪卡,350个常用单词
伊犁行政区划 伊犁哈萨克自治州,新疆维吾尔自治区辖自治州,总面积为
米卡诺铜制绑钩器手动鱼钩绑勾器子线打结器绑线器拴钩器垂钓配件
作为一个颜控,爱上达康书记真的不是我的错!
不规则的屋顶设计,大老远就给人一种非常有新意的感觉.