图知网
搜索
首页
热门推荐
图片分类
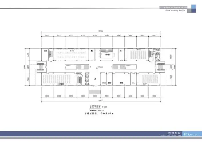
网化产业互联网有限公司办公楼
下载原图
相关图片
富思特公司厂区办公楼项目设计方案
综合办公楼平面图
土木工程毕业设计办公楼设计建筑施工图案例.
第六集办公楼设计中国人民人寿保险公司怀化总部
复式二层办公楼平面布置图
某机关三层办公楼设计
为你推荐
职场男士的专场,从一件"西装"开始,这些搭配思路要学会
《极限特工3》女神特辑4连发 迪皮卡自曝曾以为进了特种部队
大号套003黄金玻尿酸透明质酸芦荟男003安全套中号褐色
碧姐你好平成?哥斯拉怪兽拟人化娘化
金焕学雷锋做好事
940辆公交新车曼恩商用车获dbregiobus大订单
手工儿童diy手工制制作新款eva编织花篮幼儿园手工创意粘贴类
五大战区主官有何特殊之处