图知网
搜索
首页
热门推荐
图片分类
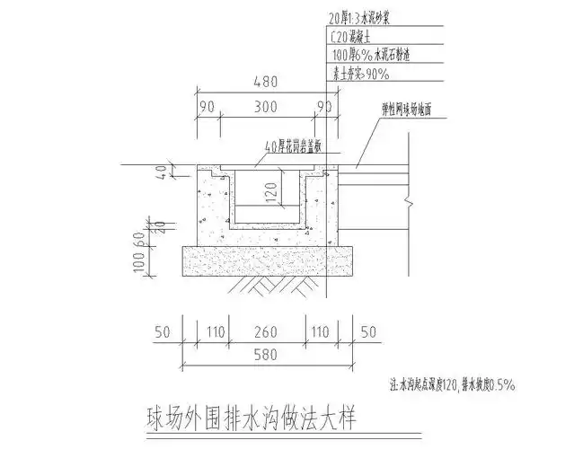
排水沟详图
下载原图
相关图片
某排水沟节点构造详图
北京香格里拉饭店全套景观设计施工图(0402edsa)_yc-35排水沟详图.jpg
排水沟及散水大样(1)-3k6001001001001001 - 抖音
排水沟大样明沟盖板cad
排水沟大样明沟盖板cad
西南18j812排水沟图集1a/4或2a/4怎么区分找到对应的尺寸?
为你推荐
日出大海头像 唯美海面日出风景头像_微信头像图片大全
拉布拉多犬,侧面视角,可爱的,宠物,扁平化设计
王源马云合照,网友:两个让我倾家荡产的男人都在这里了.
心做し (心理作用)吉他谱_双笙_g调弹唱六线谱
优利德(uni-t)lm555ld 水平仪绿光5线 红外线激光标线仪-阿里巴巴
宜家最便宜的几款餐桌好用吗
南翔地铁站200米金地白金院邸美式600平独栋别墅
还没睁眼的幼崽吸允奶水,猴妈大快朵颐地吃着芒果,及时补充营养