图知网
搜索
首页
热门推荐
图片分类
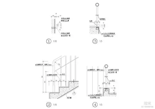
栏杆通用节点详图设计施工图下载
下载原图
相关图片
变形缝节点大样图cad施工图下载
室内室外多种节点大样图纸施工图下载
法式家装住宅室内楼梯间墙裙整木护墙板cad施工图节点图大样详图
某吊挂式玻璃幕墙设计cad节点施工图
雨棚节点详图
隔墙龙骨施工图资料下载-轻钢龙骨纸面石膏板隔墙节点详图
为你推荐
电视剧《你是我的荣耀》第10集 杨洋,迪丽热巴主演
六图网提供精美好看的设计元素 素材模板下载
130斤瘦到100斤需要多少天day23
从一线城市到六线乡村这家集结30万家药店的隐形巨头凭什么值100亿
个人向
九九乘法口诀表
飞雕86型一位二孔插座电源开关墙壁面板2孔两插双孔两眼插2插家用
北京烤鸭专用烤炉