图知网
搜索
首页
热门推荐
图片分类
请高手解决阁楼l型楼梯尺寸.开孔1400x1900,楼高3000,开孔款和长靠墙.
下载原图
相关图片
楼梯布置图.png
l型楼梯踏步用什么画
二层自建房,砖混结构,楼梯设置在一层客厅,楼梯采用l形样式,一层至二
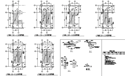
l形旋转混凝土楼梯图纸
楼梯平面图中我圈出来的符号,专业术语叫什么,起什么作用谢谢
土木工程毕业设计楼梯建筑图
为你推荐
文字套路表情包[我想睡你]
挂脖风扇设计杭州迈浪工业设计有限公司
海绵宝宝,儿童画.#儿童画 #手绘 #简笔画 - 抖音
怎么看长方体展开图 怎么看长宽高
刚刚到店2017年七座面包,个人一手车,实表7万公里,1.3 - 抖音
幼儿简单大树的画法手绘 卡通大树简笔画图片
老师捞我捞我捞我呜呜呜我已经快入土了呜呜呜呜呜呜呜呜呜呜呜呜呜呜
超粗冰岛毛线diy手工编织包包自己手编自制韩版手拎邮差包送女友