图知网
搜索
首页
热门推荐
图片分类
表情31条评论dream团队已移除him402粉丝·275视频发布于2021-08-25
下载原图
相关图片
fnf表情包可抱走
帮朋友代发,fnf表情包 monster篇 (下次想要啥人物 - 抖音
fnf表情包(37) 呼,最后一更
想在微信上放一组fnf的表情但是会侵权吗
想在微信上放一组fnf的表情但是会侵权吗
fnf表情包 #fnf - 抖音
为你推荐
阿凯
东京奥运会开幕式中国代表团入场
绶带就是古代人的腰带,它是官服的另外一个组成,绶带的颜色和长度也是
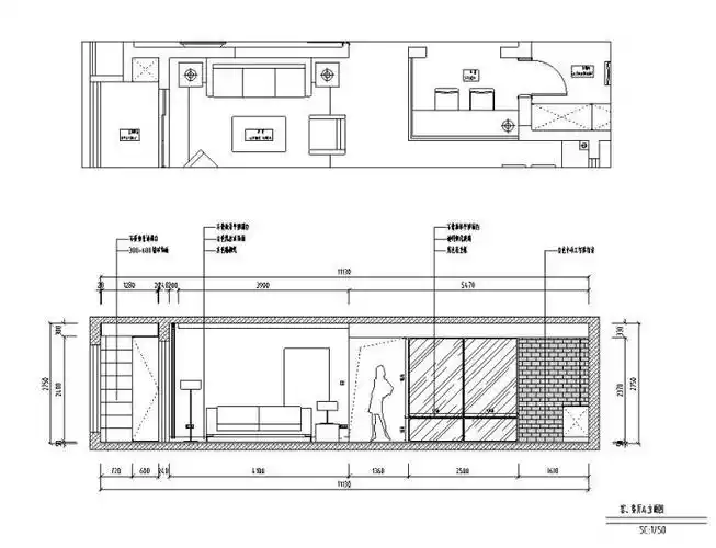
现代灰色简洁-四室两厅住宅装修施工图设计-住宅装修-筑龙室内设计
乌龟
迟到的南航明珠经济舱体验 机型:空客a320neo7615 由于第一排90
整理个人衣物,让自己多一项特殊技能
手动轮椅轻便折叠老人轮椅车残疾人代步车实心胎 皮革座面 无便孔