图知网
搜索
首页
热门推荐
图片分类
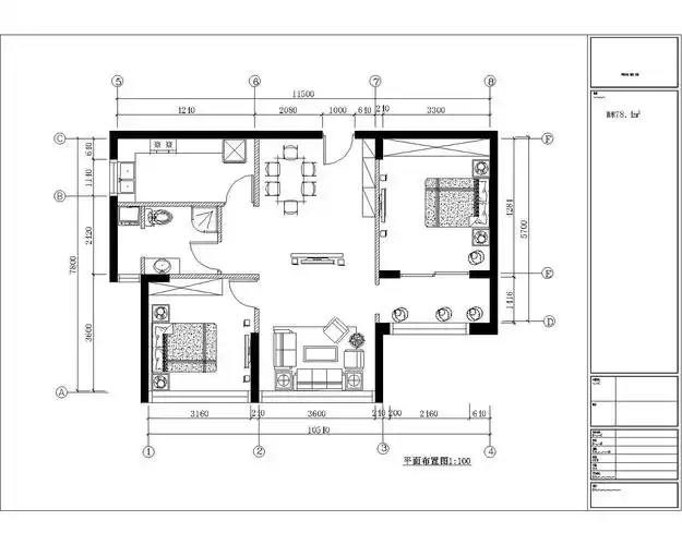
设计后的平面布置图
下载原图
相关图片
0回答 20 求一套完整的室内设计施工图 平面 立面和效果图 效果图
01平面图.jpg
室内设计之平面图
经典简单室内设计平面图设计图片赏析
平面布置图
室内设计两室
为你推荐
关于骑马的简笔画教程
双面小丑电影小丑曝光扑克脸版预告海报zt
炫酷神龙高清电脑壁纸 神龙,幻想,神龙摆尾
十二吉他谱c调弹唱谱留声玩具十二六线谱
消音器结构图
非你莫属 人力资源专家库尔特 带来答案,你是这样的人吗?
2024年盱眙龙虾节策划是谁 - 抖音
国庆简笔画.#创作灵感 国庆要到了,何其有幸,生在中国,一起 - 抖音