图知网
搜索
首页
热门推荐
图片分类
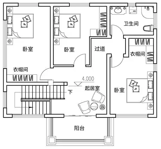
新农村二层欧式别墅设计图纸乡村自建房两层现代楼房全套施工
下载原图
相关图片
2022年建欧式二层农村别墅设计 -别墅设计-乡村房子设计图-农村自建房
j214农村欧式两层小别墅图纸新款效果图
占地11*13,两层新中式别墅-全套设计图纸 - 乡村住宅在线
晒晒农村自建房,两层小洋楼带装修25万,户型方正大气超漂亮!
2层农村别墅设计图纸
农村两层房屋设计图
为你推荐
大时代2世纪之战
白色的空白书覆盖 8,5 x 8 5
月牙泉图片
飘雪(伴奏版) - 钢琴谱 - 环球钢琴网
库拉索外宾参观外国语学校文香录播教室
小花仙【椿 进化】
老年人不慎滑倒,什么是股骨颈骨折,为什么要换掉整个髋关节?
中行原油宝事件处理路在何方?