图知网
搜索
首页
热门推荐
图片分类
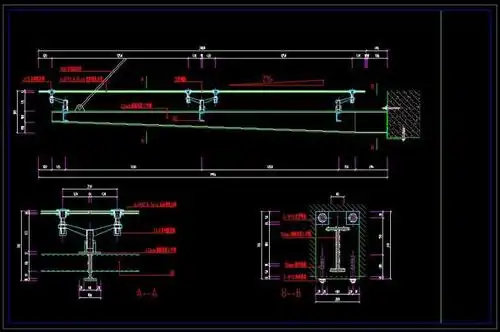
辽宁省沈阳市某酒店雨棚钢结构设计
下载原图
相关图片
史上最全设计院玻璃雨棚图集大全
辽宁省沈阳市某酒店雨棚钢结构设计
浙江省温州市雨棚钢结构设计
雨棚防水cad大样图
史上最全设计院玻璃雨棚图集大全
拉杆钢雨篷结构施工图2017(cad)
为你推荐
[一代宗师]王家卫电影经典台词截图/梁朝伟/章子怡/宋慧乔/张震/叶问
没事看看美女吧,99年演员王楚然,适合颜值控__财经头条
太美了2021生日快乐表情图片祝福生日快乐动态美图打开收藏起来备用
铃儿响叮当(六孔陶笛谱)
头像挂件 送重复卡 总金额(元) qq朋友 【找红包】1个现 - 抖音
会议室中使用小间距led显示屏优势是什么文中一目了然
4k不结盟运动旗帜视频素材
【图】黄贯中叶世荣挑战者联盟重聚 李晨大鹏"抢歌"停不下来