图知网
搜索
首页
热门推荐
图片分类
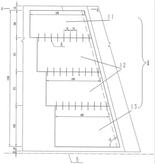
1,桥头搭板桥头搭板指一端搁置在桥台或悬臂梁端,另一端部分长度置于
下载原图
相关图片
桥台搭板一般构造图及钢筋布置图
212米预应力混凝土空心板桥头搭板钢筋构造节点详图设计
某现浇桥面板钢筋节点构造详图
桥台搭板钢筋构造
背景技术:1,桥头搭板是连接桥台和道路引道的钢筋混凝土承载板,桥头搭
桥头搭板钢筋构造设计cad图纸1
为你推荐
描述: 美丽的海景-高清拍摄图片壁纸 当前壁纸尺寸: 1600 x 1200
是墨小柒啊
唯美阳光意境壁纸
韩国十大女明星指的是谁? - 自飞扬
古风插画—望月#国风古韵 #插画 #唯美意境 #东方美学 # - 抖音
崭露头角:初涉车模行业的苏宁
摩托莫里尼新款定制风格车型calibro亮相米兰
图源微博刘梦lapmoby