图知网
搜索
首页
热门推荐
图片分类
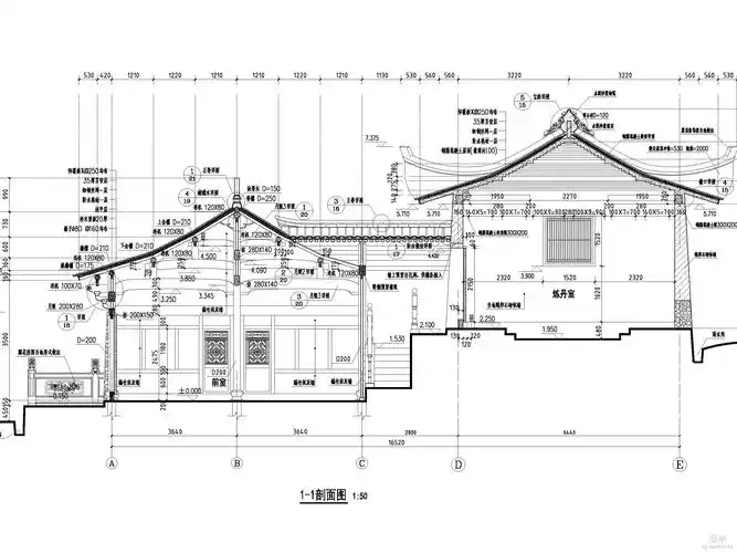
古建平面图,古建素材_大山谷图库
下载原图
相关图片
云栖建筑丨四层新中式奢华别墅,雅奢东方! - 知乎
古建平面图,古建素材_大山谷图库
素材积累专栏建筑空间平面图的形式美探究
建筑室内家具平面素材psd
整屋装修图片素材_最小风格的房屋建筑平面图插图
房屋建筑平面图素材免费下载_觅元素
为你推荐
电影雏菊##全智贤##电影推荐
流行发型设计2021年流行的男生发型参考 这10款短发超帅气2021男生
这14位女明星的大长腿,个个堪称"腿精"_杨幂_比例_整体
市知联会到沙田镇开展绿美东莞生态建设专项民主监督工作
【魈温】庭松茶馆
水彩平涂装饰画张张动人心魄
星球牌:sl一832型双卡收录机
2018天后宫游玩攻略,位于蓬莱阁的"丹崖仙境"牌.【去哪儿攻略】