图知网
搜索
首页
热门推荐
图片分类
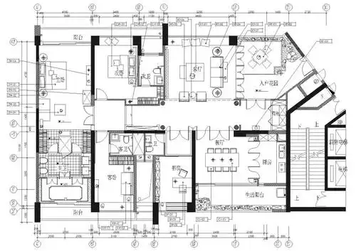
空间划分:三居室 结构类型:平层 图纸深度:施工图 设计风格:现代风格
下载原图
相关图片
122平三室施工图设计案例分享.15以上的图纸均为参考 - 17 - 抖音
平面研讨_室内设计联盟 - powered by discuz!
高层90户型施工图_施工图纸_室内设计联盟 - powered by discuz!
室内设计初学者,求可以练习的草图.
【已回复】小户型方案,求大佬优化_平面研讨_室内设计联盟 - powered
[深圳]邱春瑞_中信红树湾二期r7样板房图纸-住宅装修-筑龙室内设计
为你推荐
元气美女甜美抖音最火锁屏壁纸图片
原创39岁知名男模张亮疑假离婚?深夜为前妻庆生,离婚后还与对方同居
winston churchill enthusiasm quotes
3万元一克,看看顶级和田玉子料长啥样
童年的奢侈品雪糕,最爱的美登高回来了 不知道有多少人吃过美登高,这
很有感觉的苞米地
桐人的剑
超甜的情侣id