图知网
搜索
首页
热门推荐
图片分类
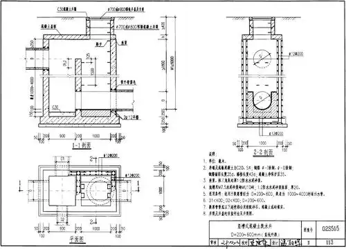
02s515排水检查井图集g
下载原图
相关图片
室外管网
02s515--排水检查井图集
单泵集水井及潜水泵安装示意
电梯井与集水井间管道预埋做法单泵集水井及潜水泵安装示意给排水图例
02s515--排水检查井图集
请问1250圆形混凝土雨水检查井算量要考虑管壁吗
为你推荐
日本原装进口昭和中期九谷烧夫妻杯茶碗一对…品相非常好整体无瑕疵
张柏芝三胎儿子生父之谜终揭晓
掐人中救人按动坚持住还有一个小时就下班了gif动图_动态图_表情包
开关和继电器符号 是电路图中的控制元件,能够调节或改变电路的工作
还买什么空调,5分钟学会自制空调扇,学会了能省不少钱
生态鱼缸底过滤 欧式双圆弧鱼缸水族箱 2米观赏大鱼缸 厂家定制
宝宝9种胎记大盘点,妈咪要做到心中有数!
菲梦少女:杨松儿一开口全场就安静了,这声音太甜美了,好心动