图知网
搜索
首页
热门推荐
图片分类
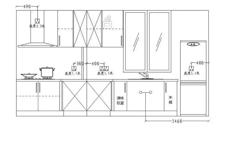
橱柜立面图
下载原图
相关图片
最新橱柜立面图设计图纸
[图块/节点]一些厨房的立面图
第八讲整体橱柜定制
厨房立面图Ⅱ
厨房立面图Ⅵ
橱柜立面图
为你推荐
63岁王中军现身法国机场!
你们怀孕都买了多少件孕妇内裤呢
穿毛衣就要穿独特的!紫色毛衣外套怎么搭配?
奥利奥蛋糕
24节气茶单收藏备用60
小羊表情包 - 堆糖,美图壁纸兴趣社区
同学们可以在上面任意发挥——写上自己喜欢的古诗,思考如何设计书签
幼儿小镇简笔画