图知网
搜索
首页
热门推荐
图片分类
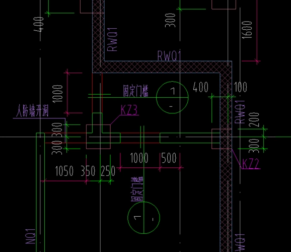
内容简介 某地下室人防部分节点构造详图 共两张图纸.
下载原图
相关图片
人防工程标识 #人防图纸 地下室车位导向图 - 抖音
地下室人防图纸怎么看
某大楼地下室人防节点构造详图
地下室人防门墙如何识图画图
医院门诊楼地下室人防电气施工图纸(含pdf版)
地下室人防门墙如何识图画图
为你推荐
花花 华晨宇
杨幂al换脸黄色小猫咪app官方下载
有没有火影晓组织的超清电脑壁纸
赶工期,有漏字07.#我的抖音生活日记 #博物馆手抄报 #数 - 抖音
卡通小兔子wink免抠素材
抹子沙板工具泥工泥瓦匠塑料灰板平底钢化大号平板托灰板搓板抹灰
22. 腋窝下长淋巴结节怎么治疗
feiyue飞跃高帮帆布鞋男鞋字母版女鞋2075207620772078