图知网
搜索
首页
热门推荐
图片分类
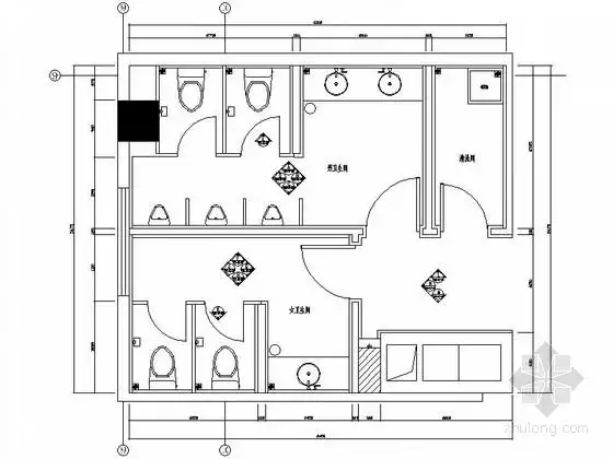
[分享]卫生间cad节点大样资料下载
下载原图
相关图片
免费cad模型资料下载-卫生间cad节点合集
[分享]卫生间防水构造cad图资料下载
[分享]cad家装立面图卫生间资料下载
[分享]卫生间cad装修图资料下载
分享cad家装卫生间立面图资料下载
分享卫生间台盆cad图块资料下载
为你推荐
女人四十岁以后,试试这3款发型,气质提升好几倍
脆皮炸椰奶速冻香酥油炸小吃半成品盛怡菲达脆皮椰奶16条2包装
张天爱粉色脏辫甜美桌面壁纸高清大图预览1920x1080_大陆明星下载_美
治愈系wechat动物头像
6.剪纸作品6号:五角折剪《苹果纹样》
《铁梨花》柳凤儿,一个清纯美丽的女子,却落得一尸两命的结局
张远苏醒约会同一女生好兄弟连女友都要共享
lv包包手绘画素材图片