图知网
搜索
首页
热门推荐
图片分类
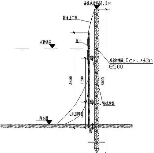
你好专家,请问下图中松木桩入土部分刷沥青套什么定额呢?谢谢
下载原图
相关图片
d120鲜松木桩松木桩
松木桩施工方案
请问这个直径50干防腐竹和φ50松木桩应该套什么定额
松木桩按米怎么换算
一种生境漫湾自然驳岸松木桩护坡结构的制作方法
[分享]河道松木桩护坡施工方案资料下载
为你推荐
那些老电视剧,你还记得多少
10种高维c蔬菜排行榜,照着吃皮肤白嫩气色好
克罗地亚女总统曾是"乡下姑娘",爱穿红色,气场力压战斗民族!
朱军:咬牙挺过4年,事业停滞不前,而告他的弦子却没事了 - 娱乐资讯(主
郭斯特:不如跳舞,吃鱼倒不如跳舞,用这个钢管跳舞,没有人觉得孤独
阆中古民居院落【本源堂】----------之六
情侣头像.#情侣头像 #雪王与雪妹 #蜜雪冰城 - 抖音
怒江州州府(六库)唯一的一块公共足球场怎么会突然停工呢?应该 - 抖音