图知网
搜索
首页
热门推荐
图片分类
福建独栋别墅_别墅图纸设计 - 图纸中心 - 易盖房
下载原图
相关图片
某坡屋顶别墅结构详图
关于斜屋面定额套用
坡屋面
双坡屋面前墙到后墙水平9.74米边到边
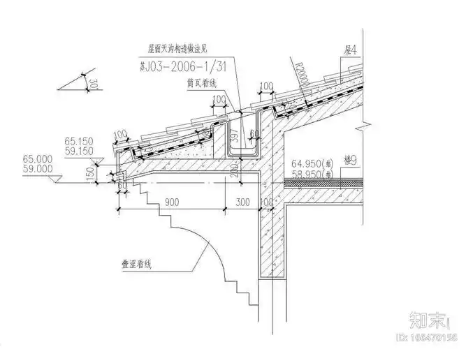
坡屋顶细部构造节点详图施工图下载【id:166470156】
这种异形挑檐斜屋面结构及装饰怎么用软件如理求大神指教
为你推荐
yuliana 的喜欢
针刺四缝治疗
根据孩子不同年龄制定不同的家务清单, 每个年龄段的孩子承担家务的
第一次给宝宝理发成功7515快来搬走教程6015.
李亚鹏资料李亚鹏资料李亚鹏资料
要想买的放心就请了解一下绿色食品,中国有机食品,无公害农产品. - 美
黄金椰蓉条
轻奢风电视背景墙竹木纤维集成墙板客厅卧室2023新款格栅线条扣板