图知网
搜索
首页
热门推荐
图片分类
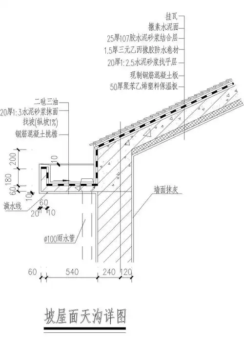
钢结构女儿墙天沟溢水口详图
下载原图
相关图片
天沟详图
cad图纸-天沟女儿墙大样图
彩钢板天沟设计详图
天沟女儿墙节点图cad施工图设计_通用节点详图_土木在线
女儿墙内天沟泛水,是什么意思,在工程预算书上看到的
钢结构女儿墙 天沟 泛水(一)
为你推荐
戴墨镜吸烟,复古风格的迷人黑发女子
书法创作完成之后最后要落款盖章这个章应该盖几个呢这样章上面应该刻
19种超乎想象恐怖海底生物,地狱其实就在海底
《新绝代双骄2》花无缺x怜星 神雕侠侣结局
一边剃铲青超短发 打造潮流个性女生_发型站_最新流行发型设计发型
葡萄紫色将两种深浅不一的棕色混合在一起,能够增强发型的层次感
第五人格摄殓
厄运小姐 最终正式版 皮肤预览 技能特效 原画 炫彩【英雄联盟】