图知网
搜索
首页
热门推荐
图片分类
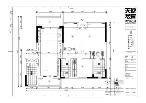
施工图-天花布置图/造型尺寸图/灯具开线图.
下载原图
相关图片
施工图-天花布置图/造型尺寸图/灯具开线图.
第九,十课 绘制天花图纸
第九,十课 绘制天花图纸
天花吊顶图
完成天花布置天花造型尺寸灯具开线图
完成天花布置&天花造型尺寸&灯具开线图
为你推荐
生活中那些可可爱爱的瞬间温柔的音乐配上调皮宝宝的照片呀
泫头像
man wearing black hoodie standing near countertop
7cm北欧迷你树脂仿石膏像阿波罗 雅典娜亚历山大 面冠女神 拉奥孔
108建筑胶水
李现河神 郭得友 - 抖音
常见的5款mfi认证数据线横评!
luv letter-c调版双手简谱预览2