图知网
搜索
首页
热门推荐
图片分类
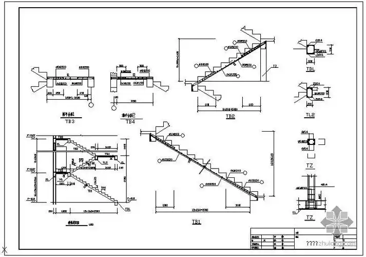
室内施工图钢结构楼梯踏步做法节点大样图
下载原图
相关图片
u型楼梯图纸,u型楼梯平面图_大山谷图库
楼梯节点大样详图2_土木在线
楼梯详图:踏步宽,踏步高,楼梯尺寸为多少? - 楼梯剖面详图 - 实验室设
(有图)楼体设计方案,请大家帮忙看看哪种比较合适? 装修讨论 篱笆网 -
某楼梯节点构造详图(1)-混凝土节点详图-筑龙结构设计论坛
楼梯详图_word文档在线阅读与下载_无忧文档
为你推荐
女子特战队 剧照
【纯享版】林俊杰 - 修炼爱情 爵士版 【2021超级巨星红白艺能大赏】
我最喜欢的春日野蔬_母鸡头
战国紫水晶珠一颗 - 金银玉器 - 古泉社区
文轩世界第一初恋##宋亚轩刘耀文合唱对视
抖音流行的壁纸少女(2)-美女壁纸 - 壁纸家
曲凌子生日写真曝光笑容甜美驾驭青春时尚
电影《闪闪的红星》海报