图知网
搜索
首页
热门推荐
图片分类
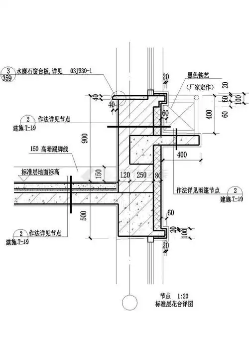
阳台示意图
下载原图
相关图片
阳台剖面
某阳台cad设计构造完整详图无雨蓬
阳台剖面3
阳台详图35个平立剖面cad布置图
[分享]阳台详图cad资料免费下载
混凝土阳台构造节点大样施工图cad
为你推荐
健康快乐幸福美满祝福语鲜花gif动图_动态图_表情包下载_soogif
欧美 日韩 平铺 插画 个性 背景 原图 无水印 锁屏 原图 壁纸 屏保
超好van的动漫表情包和漂亮美图第二百零四期
人文,风景,休闲
变频器元器件性能变劣现象,民熔电气专家带你做个小科普
纯色美甲
手绘边框png素材图片
曲谱你学尤克里里的第一首曲子是哪个