图知网
搜索
首页
热门推荐
图片分类
黑龙江省的图片
下载原图
相关图片
来源龙头新闻黑龙江日报
从万千气象看大美龙江-黑龙江省气象局
黑龙江图片
黑龙江省大兴安岭文旅logo有奖征集活动正式启动
雾凇-哈尔滨平房区图片590,黑龙江省旅游景点,风景名胜 - 蚂蜂窝图库
2014,2015跨年欢乐雪乡行图片660,黑龙江省旅游景点,风景名胜 - 蚂
为你推荐
离婚1年后再看孙怡和董子健如今境况才知王京花当初有多精明
宜都市花呗套现--【来.电.咨.询.181.5943.0115】【加.微.咨.询.
原创魅力健身房里的男孩完美的外表和身材让人为之倾倒
必收藏实用干货:超700个色卡/100种国风色卡【图名对照】
2019林子祥广州演唱会(时间 地点 门票)
《国宝档案》主持人——任志宏,为您现场揭秘国家重点文物保护单位
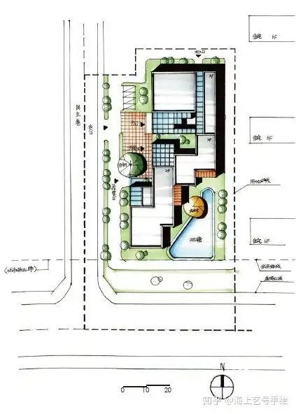
设计手绘|建筑快题设计总平面图怎么表现? - 知乎