图知网
搜索
首页
热门推荐
图片分类
05世界尊宠首诚奥运菊苣奥运专用蔬菜
下载原图
相关图片
菊苣是夏季牧草还是冬季牧草
中药材特级天然菊苣菊苣片菊苣根茶菊苣茶菊苣片500克
维乐夫:在菊苣根中提取的"菊苣蜜纤维"对肠道功能有益
菊苣菊苣图片
菊苣草的最佳种植时间
菊苣的俗称是什么 菊苣的别名是什么
为你推荐
黑白动漫可爱女生头像|日系二次元头像
美的(midea)空调立式大2匹/大3匹客厅圆柱新能效冷暖立柜式变频柜机
吐槽大会马思纯吐槽五条人市容市貌的敌人
庄达菲海风灵动大片##庄达菲蓝色纱裙海边氛围感
此为航拍丽江古城夜景
9x11米三层带露台别墅布局很讲究隐私性强空间大功能还很全
简笔画 手绘 素描 线稿 7801040 竖版 竖屏
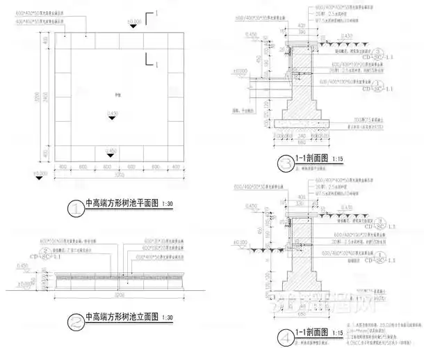
4套欧式景观花坛施工详图cad图纸