图知网
搜索
首页
热门推荐
图片分类
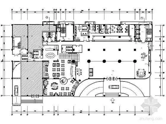
大堂平面图
下载原图
相关图片
酒店大堂
一个酒店大堂平面-平面规划-马蹄室内设计论坛-序赞网
各位大神帮忙看看一酒店大堂的柱子怎么处理好_平面研讨_室内设计联盟
分享某酒店大堂平面设计图资料下载
郑州市某商务星级酒店3层大堂平面布置设计cad图纸
酒店大堂快题设计步骤图
为你推荐
性感日系和服美女写真图片壁纸(5/11)
游泳必备的口语表达_威恩英语网
小人祭锦棒叶小人祭仙童唱多肉植物日本小松盆栽绿植花卉组合
《平凡的世界》:平凡的世界,不平凡的人生
科技小制作小发明创意电动
【梅花三弄笛箫谱】梅花三弄(刘群强编配版)笛箫谱-明明简谱网
onlyoneof 221001 日本神户线下 nine 郑煜缜 「ズルい女」直拍
父亲修仙,他游荡于仙境,喜欢当父亲