图知网
搜索
首页
热门推荐
图片分类
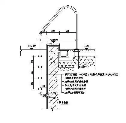
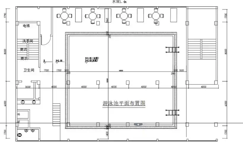
广东省某室内游泳池建筑设计施工图
下载原图
相关图片
某室内游泳池详细设计图(dwg格式),内含平面图,立面图,剖面图等,供
游泳池设计公司
内容包含:游泳池平面图,池壁攀梯大样图,设计说明等,设计全面,内容
小女孩在游泳池里游戏简笔画
戴高乐游泳池一体化设备 操作简单灵活 运行平稳安全
本资料为:某俱乐部游泳池施工图,包括平面图,立面图,剖面图,内容详实
为你推荐
有好看的qq背景图吗
中秋月饼吉祥纹样图案设计图__花边花纹_底纹边框_设计图库_昵图网
png透明背景素材
8.10一一大西北(青海)之旅的第一站西安照
不少市民来到这里的参茸柜台,挑选合适的野山参,燕窝等参茸产品给奋斗
32位杜丽娘32种东方古典美,惊艳你了吗?高清美照速来收藏!
下载1165因祂活着歌谱
面相 嘴巴面相图解_小嘴巴面相_女人嘴巴大面相