图知网
搜索
首页
热门推荐
图片分类
教程|导入cad创建墙体
下载原图
相关图片
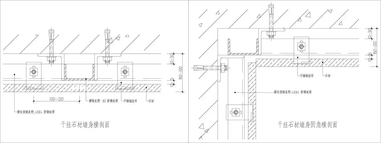
分享节点图cad下载资料下载
提高画图速度最好的方式就是拥有一套高质量cad图库
[分享]墙面造型cad资料下载
[浙江]义乌中央公馆样板间cad施工图 效果图
现代时尚电视背景墙cad立面图块下载
这样画图,cad效率提升3倍!_墙体
为你推荐
小清新可爱杏花壁纸图片
原创俩闺蜜身高差距超大矮的反而赢了全靠这双新款匡威成功抢镜
盐城市东台市20232024学年七年级上学期期末语文试题有答案
星海循月决战平安京彼岸花全新赏金特典皮肤即将上线
嘘07被邻居小孩问爆的自制零食盲盒教程
求梵高《夜晚的咖啡馆》高清大图.请出4×4喷绘的.婚礼用.为了一场
361泳衣女夏季分体游泳衣女士遮肚显瘦保守2023新款爆款女装泳衣