图知网
搜索
首页
热门推荐
图片分类
幼儿园画画简笔画,幼儿园画画大全 简单易学,幼儿园画画作品简单,幼儿
下载原图
相关图片
幼儿园画画简笔画,幼儿园画画大全 简单易学,幼儿园画画作品简单,幼儿
幼儿获奖绘画作品图片大全
幼儿园画画简笔画,幼儿园画画大全 简单易学,幼儿园画画作品简单,幼儿
[幼儿园大班数学练习题]幼儿园大班获奖绘画图片作品
幼儿园画画简笔画,幼儿园画画大全 简单易学,幼儿园画画作品简单,幼儿
幼儿园画画简笔画,幼儿园画画大全 简单易学,幼儿园画画作品简单,幼儿
为你推荐
六盘水监狱开展比规范促养成罪犯队列会操比赛
茄子究竟为什么退役? - 头条热点 - 网创网
金馆长表情gif略略略gif你能拿我怎样gif恶搞gif逗比gif卡通gif
银屑病关节炎症状图片_银屑病求医网
>>白龙马钢琴简谱乐谱
赖美云亮相金鹰节开幕晚会 演绎梦想至上
宁远
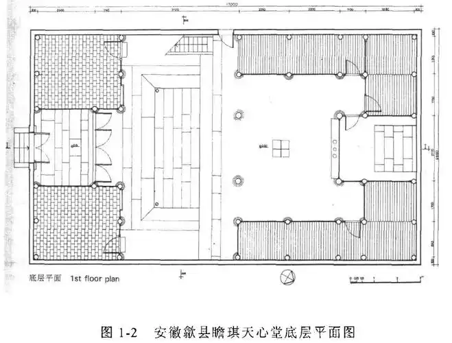
徽州地区人多地少,民宅主体建筑一般为三开间两层楼,底层和楼层空间