图知网
搜索
首页
热门推荐
图片分类
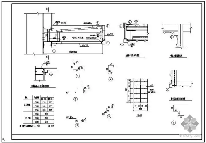
钢结构雨篷结构施工图(吊拉式雨棚)
下载原图
相关图片
某钢结构雨棚节点构造详图
某点式玻璃雨篷结构设计图
辽宁省沈阳市某酒店雨棚钢结构设计_荷载_项目名称_型钢
地下停车场出入口钢结构雨棚设计详图
某30m车库点式玻璃雨棚钢结构施工图cad
分享自行车棚雨棚cad图纸资料下载
为你推荐
尤文有意明夏引进马塞洛将用桑德罗作为交换
萌萌的小可爱
热爱生活钟于自己
经典创意公共座椅设计欣赏
win10设置默认图片查看器
西湖十景三潭印月的由来(浙里悦读)(3)
丑小鸭是安徒生童话还是格林童话?是金子总会发光的
dior迪奥 男士 牛仔裤 013d001by989_c980013d001by989_c980 预定商品