图知网
搜索
首页
热门推荐
图片分类
男生微信冷酷头像😎
下载原图
相关图片
高冷男士微信头像😎
微信头像男👨❄️
男生微信头像👑
微信头像
男生高冷微信头像😎
微信头像
为你推荐
娄艺潇李金铭素颜同框,引观众回忆满满,坦言回到了《爱情公寓》
霍英东孙子霍启文出席音乐会.(摄影:易珏)
一个简约温馨的场景一袭黑色礼服一组时尚大片婚纱照
白癜风一般缺少哪些微量元素
2018年中国十佳运动员
早安正能量句子语录早上好问候图片
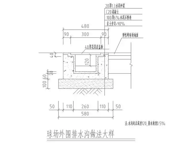
特色网球场施工图详图-园林景观节点详图-筑龙园林景观论坛
不锈钢日月乾坤刀双刀表演大刀九环刀雁翅刀长兵器双头未开刃