图知网
搜索
首页
热门推荐
图片分类
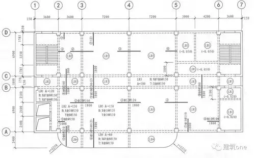
简单又不简单的楼板钢筋
下载原图
相关图片
现浇楼板阁楼钢筋配筋标准
闭口式压型钢板组合楼板耐火试验
压型钢板组合楼板的构造特点
楼板上部钢筋的接头的位置你说对吗
楼板负筋不论钢筋级别,也就是一级二级三级钢都要做90度弯钩,使其支在
压型钢板非组合楼板在软件中如何处理谢谢
为你推荐
2022最新老奶奶的简笔画简笔画人物画法奶奶
农家自种本地土辣椒,老品种,11之前领券下单太划算啦#辣椒 - 抖音
怎样挑选猪板油
请问一下脚底瘙痒,脱皮,如下图,该怎么治?谢谢医生
新的皮革礼品盒与磁性盖豪华包装圆形天鹅绒香水盒
百梯万人,信赖广日——记广州市荔湾区旧楼宇加装电梯现场会
悼念老人驾鹤西去的诗句(悼念老人驾鹤西去的诗句柳)
满天星有哪些颜色(满天星有哪些颜色的花语比较好)