图知网
搜索
首页
热门推荐
图片分类
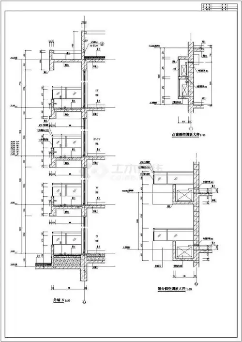
别墅建筑施工图含大样
下载原图
相关图片
某墙身大样图cad完整构造施工图纸
施工图深化节点大样图
老虎窗处柱梁交接处加固大样
某住宅室内设计装修墙身节点大样图纸
承台配筋大样图.jpg
现浇楼梯大样图
为你推荐
angelababy 奔跑吧
速写-花瓣网|陪你做生活的设计师 | 用flash制作人物走路的动画
太极生两仪,两仪生四象,四象生八卦.
孩子,捕捉昆虫
手机键盘 #可爱壁纸 今日份26键 键盘壁纸 喜欢的点赞哦 - 抖音
和平精英q版头像要的拿去
【厂家直发】琪源堂 氟冰霜正品婴幼儿童型婴宝专用漳州三好出品
老妈第一次化疗出院,请懂得朋友帮忙看下