图知网
搜索
首页
热门推荐
图片分类
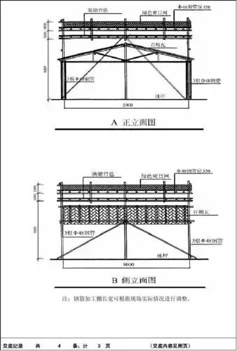
六盘水施工现场标准化钢筋加工棚这样搭设,附带安装详图材料表
下载原图
相关图片
标准化钢筋加工棚这样搭,有详图,有材料表
钢筋加工棚设计图纸
钢筋加工棚施工技术交底2012.09.08
大棚设计图
625/825型搭建户外养殖大棚骨架钢管钢架大棚养鸡鸭鹅棚鸡舍设备
18x30彩钢棚外形尺寸图
为你推荐
60岁女演员王姬女神节过于油腻三八百分之百是贬义
韩国男明星图片(外国网民票选最帅韩国男星top)
吴亦凡起诉网络侵权用户
大明按察使
我就觉得一个人挺好
大理石水刀拼花.#实景拍摄效果 #大理石 #水刀拼花 #农村 - 抖音
电钻黑色白色收纳架支架壁挂式电动工具收纳架工具架车库存储架
"陆军中将"王洪光:原南京军区副司令员,现状如何?